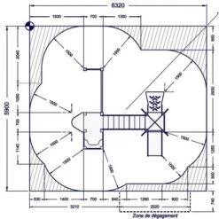
La structure de jeux imitation arbre est composée d’un toboggan, d’un pont, d’un filet d’escalade, d’un escalier, d’une rampe…
La structure permet d’amuser simultanément 22 enfants de 18 mois à 3 ans.
Caractéristiques :
- Structure en panneau HPL 15 mm
- Poteaux en aluminium finition anodisée de section 90 x 90, ép. 4 mm et rayonné 5 mm
- Composants métalliques en acier galvanisé à chaud
- Boulonnerie et équerre en acier inox ; les têtes de vis et écrous sont protégés par des capuchons en polyéthylène haute densité
- Toboggan en polyester armé de tissu de verre d’épaisseur 8 mm
La structure de jeux disponible en 2 versions : avec un montage en surface ou montage en profondeur (à préciser lors de la commande)
Commande en ligne : livraison avec les couleurs des visuels 3D
Pour modifier les couleurs de la structure multi-jeux, découvrez le nuancier ci-joint et contactez le service commercial.
La notice de pose de la structure pour aire de jeux est dans les documents joints.
















Avis
Il n’y a pas encore d’avis.